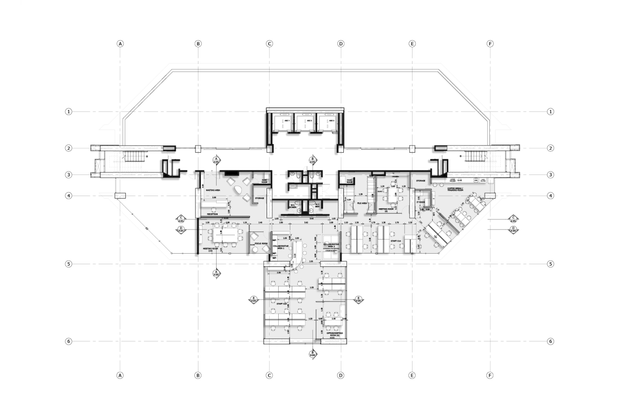
Partiendo de la complejidad de la planta arquitectónica, este proyecto se desarrolló en torno a la importancia de las áreas colaborativas y el trabajo en equipo con la implementación de su nueva marca.
“Las fortalezas que identifico en Figamma son: el profesionalismo, la atención al detalle y la experiencia.”
JUAN SEBASTIAN WARTENBERG, GERENTE REGIONAL










