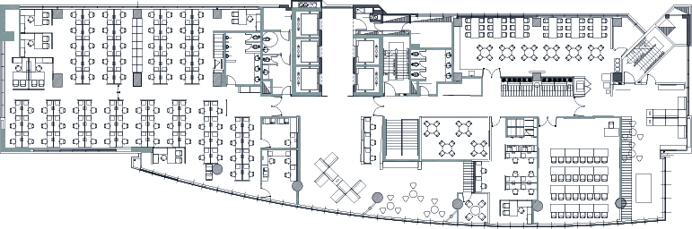
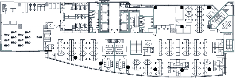
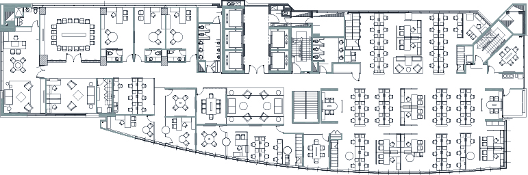
Inicialmente nos contactaron para realizar una remodelación en el área de la presidencia, pues al igual que las demás zonas de la alta dirección, el área estaba sobredimensionada, mientras las zonas operativas carecían de buenas condiciones de trabajo para los empleados, y suficientes espacios para reunión. Luego de realizar una valoración y una consultoría en áreas, nos dimos cuenta del mal aprovechamiento que tenían en los tres pisos, y que el espacio con el que contaban se podía reorganizar garantizando capacidad y mejores condiciones, estandarizando tipologías según cargos/ rangos. Con esta reorganización, se logró no solo cumplir con el programa sino crear suficientes puestos de crecimiento en cada área, se triplicó la capacidad en áreas de reunión y colaboración, y adicionalmente se crearon áreas nuevas como: auditorio para 60 personas, una gran cafetería, área de bienestar y esparcimiento, incluso un gimnasio de 200M2 con sus respectivos baños y vestieres.
El ambiente general, se manejó en colores y materiales limpios, mobiliario en manejo de blancos, neutros y grises, contrastados con los tonos azules y turquesas que semejaban los colores del mar. A través de una implementación de marca, se logró fomentar el sentido de pertenencia y el trabajo en equipo. Luego de este primer caso de éxito, se replicó el mismo look en las diferentes sucursales de la organización a nivel nacional.
“De Figamma destaco: el estudio de las necesidades del cliente, y la conversión de las mismas en diseño y ejecución.”
VICTOR SILVA, CFO COLOMBIA















