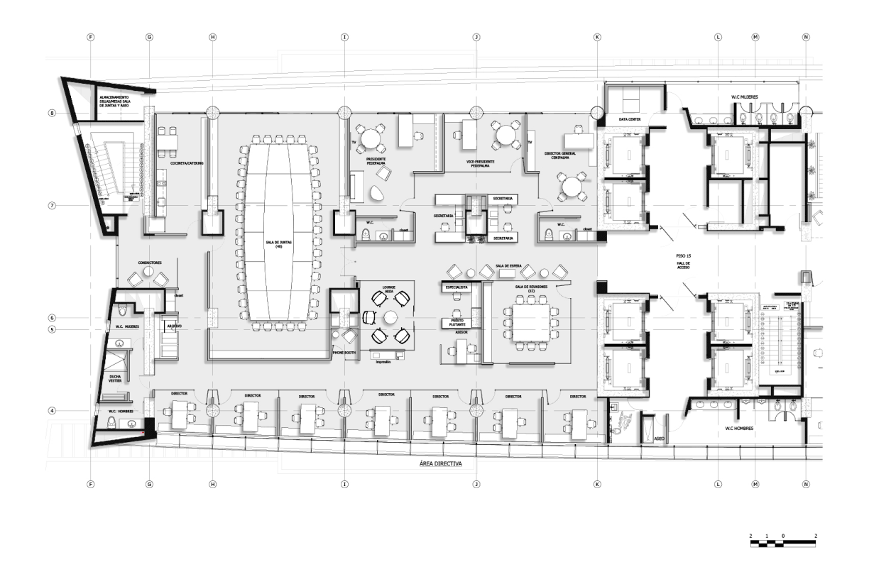
Luego de ganar una licitación en la cual participamos 18 proponentes, el reto de este proyecto, la nueva sede de la Federación de palmeros de Colombia, consistió en unificar dos sedes de la compañía: el área directiva y el área operativa, integrando más de 300 empleados bajo un mismo espacio.
La descomposición de la hoja de palma y su fruto, fue el punto de partida para desarrollar el concepto de diseño, y el manejo de color y texturas en el espacio vino del mismo. Un muro verde en el vació de la escalera con doble altura, es el protagonista de la recepción y es la portada perfecta para ingresar a las instalaciones
buscando optimizar la operación, fomentar el trabajo en equipo y lograr el bienestar general. Se creó una distribución abierta, con oficinas directivas en un área privada, diferentes espacios colaborativos, áreas de esparcimiento y bienestar, y salas de reunión formales para los clientes y visitantes.
Igualmente se diseñó un área de consulta e investigación para personas del gremio, con una amplia selección de publicaciones y material informativo, al igual que herramientas tecnológicas de investigación.
“No creímos que fuera posible terminar el proyecto en los tiempos establecidos, esto demuestra mucho profesionalismo de su parte.” JENS MESA, PRESIDENTE












