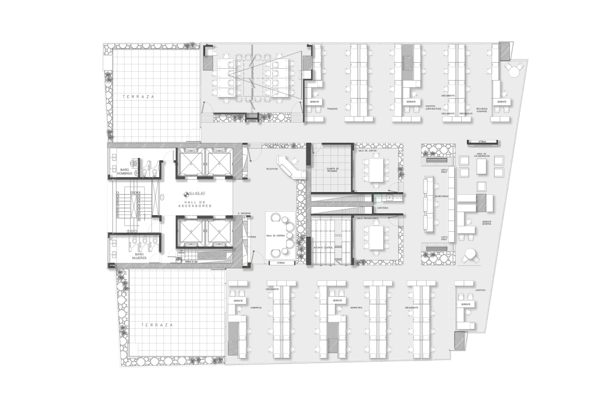
Cuando Natura cambió la ubicación de sus oficinas, nos pidieron modernizar en look general, pero principalmente que en el nuevo espacio se lograra una interacción constante de los empleados. Aunque no serían un punto de venta, querían que los productos tuvieran un lugar donde lucirse, por esto que desde la entrada se plantearon vitrinas para la exhibición. Como concepto principal se propuso la biofilia, en donde se realzó la importancia de la naturaleza viva mediante jardines verdes, plantas reales que le dan color y sensación acogedora al espacio.
Con mucha creatividad y un uso eficiente en el manejo de materiales, colores, acabados y elementos gráficos como cajas de luz con publicidad intercambiable según sus campañas de productos, el nuevo espacio promueve una mayor conexión entre los empleados ya que todos los puestos son abiertos y se propicia el trabajo en equipo a través de áreas de colaboración abiertas, salas de reuniones privadas y un auditorios de uso múltiple para las capacitaciones de su fuerza de ventas.
“Natura fue un proyecto pionero en la aplicación de conceptos como open office y biofilia, brindando esquemas de trabajo integrados y bienestar a sus ocupantes.”
LINA MA GONZALEZ. DIRECTORA DE DISEÑO. FIGAMMA









