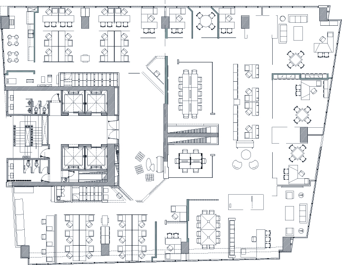
Ubicado en el centro financiero de Bogotá, el nuevo diseño de las oficinas del Grupo Petrolero Colombiano GPC debían reflejar el principal atributo y valor de la marca: sostenibilidad. Este proyecto está dotado con un sistema de automatización de punta que permite eficiencia y ahorro en el consumo de energía, agua y aprovechamiento de luz natural. Las nuevas oficinas del grupo están ambientadas con imágenes alusivas a la abundancia del paisaje natural colombiano y sus recursos. Puntos focales coloridos y armoniosos con elementos de artistas locales, complementan los espacios de trabajo funcionales y colaborativos para empleados y visitantes.
“Este ha sido uno de los proyectos más retadores, ya que la premisa fundamental fue desarrollar los más altos estándares de calidad, tecnología, sostenibilidad y lujo.”
LINA MARIA GONZALEZ. DIRECTORA DE DISEÑO FIGAMMA







