Hace 7 años tuvimos el privilegio de ser elegidos para hacer las primeras oficinas de Garrigues, con un resultado exitoso en Bogotá, y posteriormente en la ciudad de Lima, Perú.
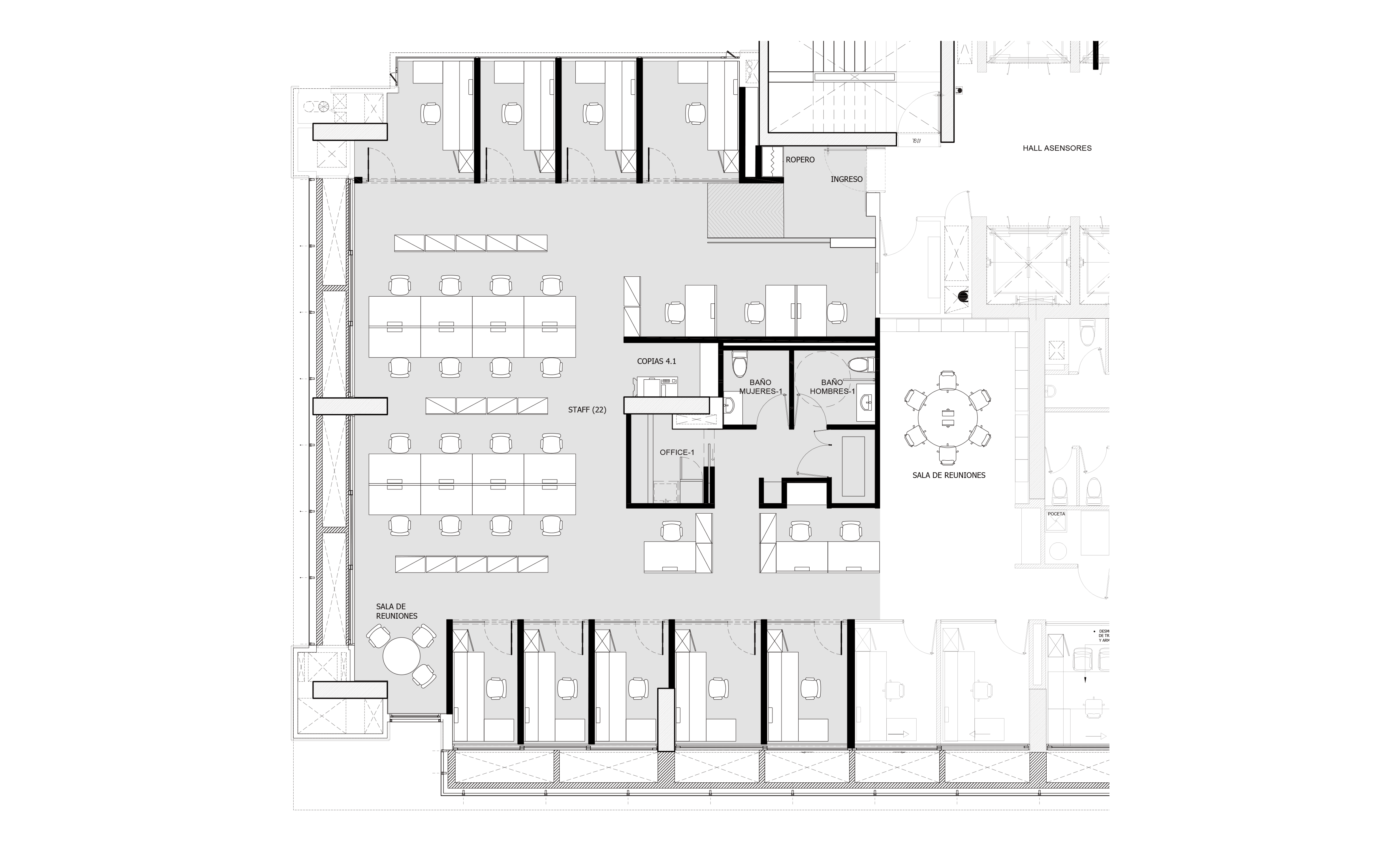
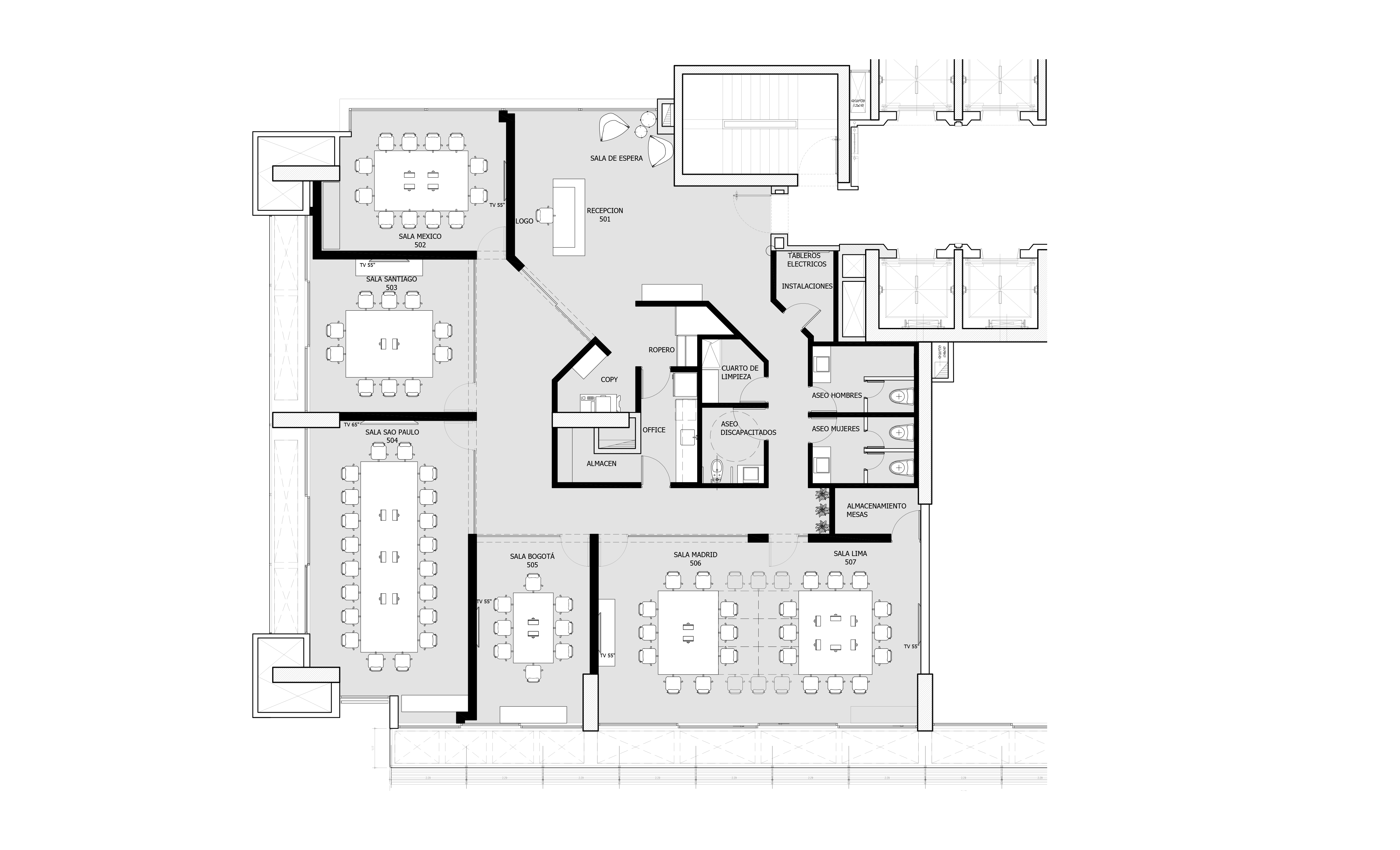
Luego de 2 años de gestación, y guiados por su equipo de arquitectura ubicado en Madrid, el proyecto fue llevado a cabo en el mismo edificio, con la idea de trasladar la zona de salas de reuniones para clientes a un piso superior, aprovechando una mejor vista, y luz natural, dejando espacio en pisos inferiores para crecimiento de más oficinas para socios, asociados y puestos de trabajo abiertos. La premisa del proyecto fue mantener altos estándares de privacidad visual y acústica, para lo cual la disposición arquitectónica de las salas fue diseñada en función de la confidencialidad y bienestar de los clientes de Garrigues.
En cuanto al look, se mantuvieron los estándares arquitectónicos definidos a nivel global, y el equipo de Madrid solicitó darle relevancia a la recepción, con un diseño innovador e imponente. Nuestra idea fue crear un look sofisticado y a la vez acogedor. Esto lo logramos mediante el aprovechamiento de luz natural, el manejo de diferentes materiales en pisos y muros para darle versatilidad al espacio. Combinamos pisos en pocelanato tipo mármol y alfombras de diferentes referencias. Diseñamos un counter angular en corian, complementado el ambiente con enchapes tipo madera en gran formato sobre el muro principal. El toque final fue dado por la convivencia de dos piezas escultóricas con plantas naturales, lo que terminó de dar vida y frescura al espacio.







