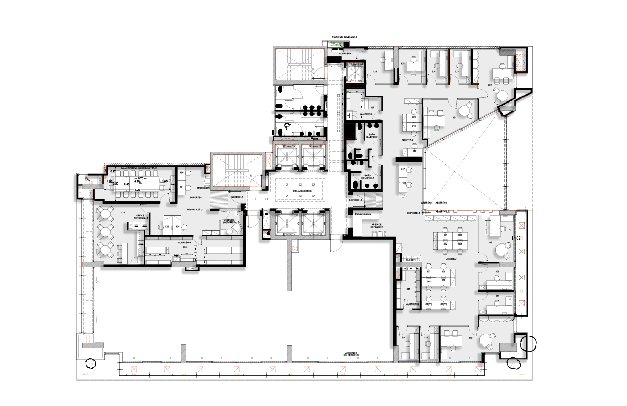
En respuesta al crecimiento en la región, Garrigues decidió ampliar su sede en la ciudad a una nueva oficina en un edificio LEED Gold. Para esta gran firma con presencia global, mantener sus estándares de diseño unificados tanto en tipologías como en distribución y materiales es una premisa innegociable, por lo cual el trabajo en equipo con su departamento de arquitectura y planning ubicado en Madrid, fue una pieza clave en el rotundo éxito del proyecto. El resultado final incluyó una distribución espacial con la tipología de trabajo definida para oficinas privadas y staff, al igual que una amplia sección de salas de reuniones de distintos tamaños para la atención a clientes, manteniendo los altos estándares de calidad en acabados, especialmente en el manejo acústico para garantizar la confidencialidad de su trabajo.













