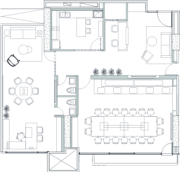
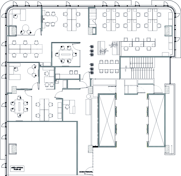
Las nuevas oficinas de Gallagher en la ciudad De Medellín se encuentran ubicadas en el sector empresarial de mayor desarrollo, con presencia de las principales empresas nacionales y multinacionales. Siendo esta plaza un importante punto de desarrollo para la marca, sus nuevas oficinas debían reflejar los atributos de la marca conservando el carácter cálido y servicial de la región. Materiales y colores neutros combinados con acentos de color de la marca y espacios colaborativos, fueron la mezcla ideal para el resultado final armonioso de este proyecto.
“Le entregamos a Figamma las necesidades de nuestro negocio, con un presupuesto ajustado y un lienzo en blanco. El producto final superó nuestras expectativas, contribuyendo a posicionar nuestra marca en el segmento más alto del mercado.”
VICTOR SILVA, CFO GALLAGHER










