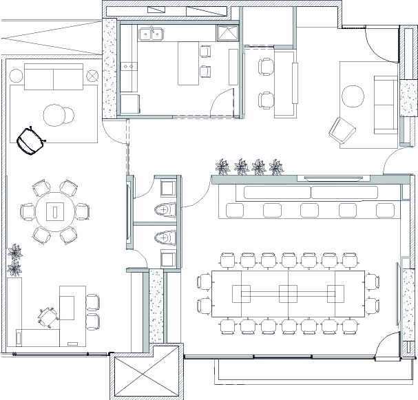
Este proyecto insignia para esta compañía de Seguros, Gestión de Riesgo y Consultoría, duró dos años gestándose. Luego de una detallada consultoría de espacios, y revisar diversas alternativas de ubicación y área, los directivos de la compañía decidieron permanecer en el edificio actual, reorganizando el espacio en su totalidad. En esta oportunidad nos correspondió hacer la renovación integral del área de presidencia, donde iría no solo la oficina del CEO, sino la Sala de Juntas principal.
Las determinantes de diseño para este espacio fueron: amplitud, iluminación, privacidad, tecnología, y arte. La amplitud: quisimos dar una primera gran impresión, por lo cual el Lobby se pensó un diseño generoso, de techos altos, y acogedor gracias a los colores, texturas, y biofilia (vegetación). Iluminación y tecnología: La sala de juntas, con una capacidad máxima de 30 personas, ubicadas en la mesa de reuniones, y complementado con una gradería, era el espacio principal de esta oficina. Quisimos aprovechar el gran ventanal, con vista a los cerros orientales, para acceder a luz natural y a un balcón privado. Se implementó tecnología audiovisual de los más altos estándares, para realizar reuniones presenciales y virtuales.
La privacidad también fue una premisa de este espacio, por lo cual se seleccionaron materiales en muros, techos y divisiones/puertas, que brindan confort acústico y mantienen la privacidad e independencia de los espacios. Y por último, destacamos imponentes piezas de arte moderno, de distintos formatos, manejos cromáticos y texturas, que le dan a cada espacio personalidad, y energía.









