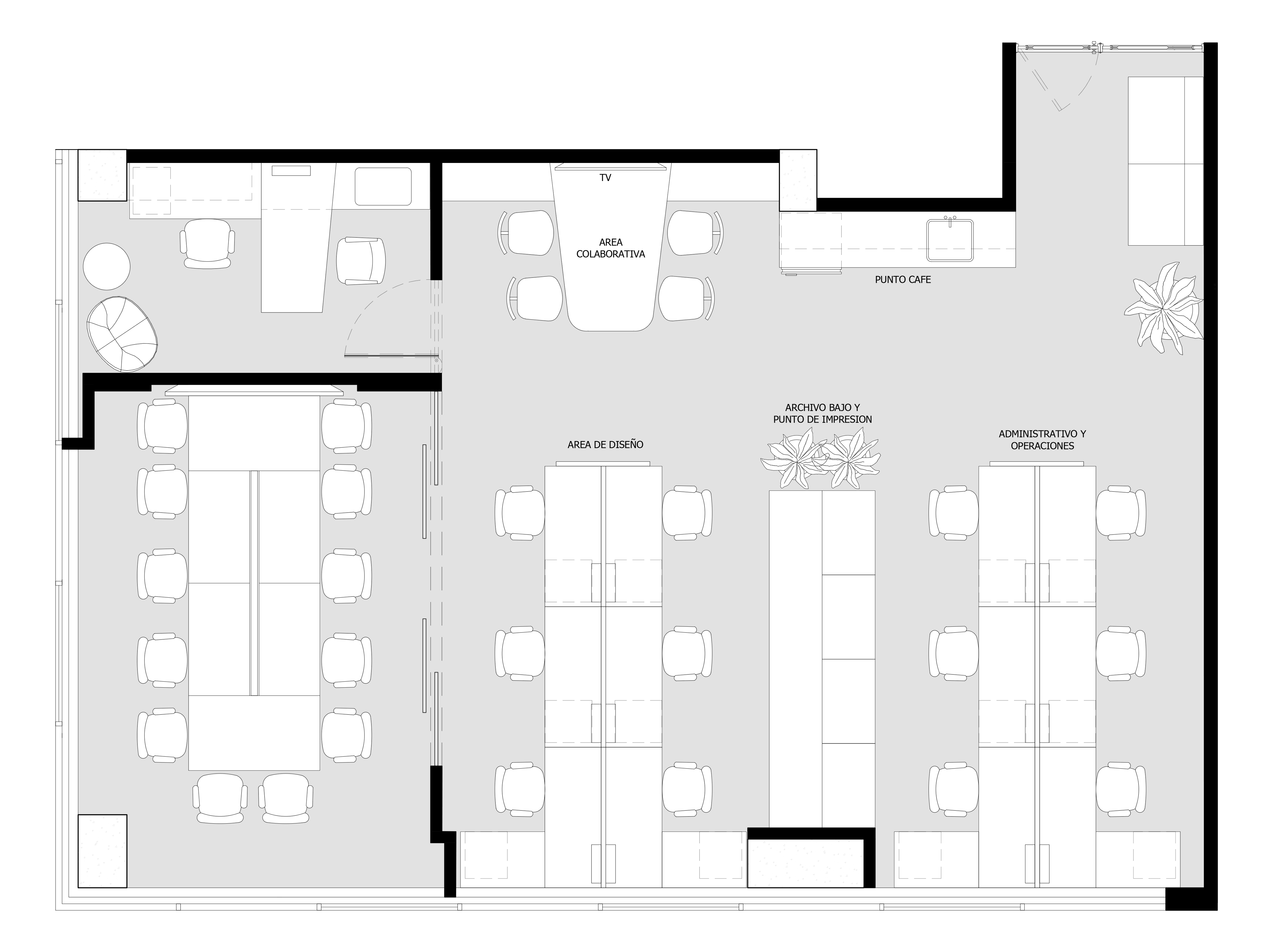
Diseñamos y construimos nuestras nuevas oficinas, buscando tener un espacio inspirador, funcional y acogedor, optimizando cada una de las labores que desarrollamos con el equipo: puestos abiertos para el trabajo individual, una oficina privada para trabajo de concentración, un área colaborativa central, y una amplia sala para nuestras reuniones internas, presentaciones comerciales a clientes y recibir a nuestros proveedores.
Como concepto de diseño, nos inspiramos en la ortogonalidad de nuestro logo símbolo, “el cuadrado”, con la versatilidad de la marca, creando patrones o texturas en pisos, muros y techos, contrastados con elementos decorativos orgánicos, y colores vibrantes que generan armonía visual.
En materiales, utilizamos alfombra modular en las zonas de trabajo, junto con techos en exsound para ayudar con el confort acústico. Las divisiones de vidrio con camara de aire interna y herrajes especiales, permiten mantener la privacidad al momento de independizar los espacios, y también el paso de luz natural al interior del espacio.
En el mobiliario, elegimos acabados de superficies y estructuras en colores neutros como blanco, y tonos de grises/taupe, complementados con elementos en madera clara, textiles (algodon, malla y cuero) para darle textura y calidez al espacio.
Para la imagen gráfica, elegimos ubicar el logo en la parte central y punto focal de la oficina, y unos textos en relieve con un mensaje inspirador sobre una pared azul, complementados con listones de madera que le dan dinámica a las paredes.
La presencia de biofilia: plantas naturales de distintas alturas, le dan vida y colores verdes brillantes al espacio, y generando una sensación de bienestar.








