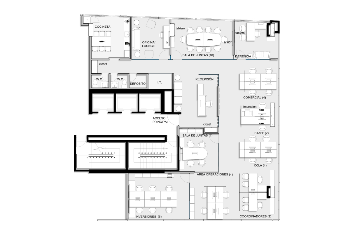
Ubicado en una de las zonas de renovación urbana tanto residencial como corporativa, con alto desarrollo empresarial, CompassGroup, una compañía de origen chileno, especialistas en inversiones en América Latina, decidió tomar medio piso en un edificio nuevo para adecuar sus oficinas corporativas y para atención al cliente.
El nuevo diseño tiene en cuenta no solo la funcionalidad de los cargos, incluyendo más áreas de reunión y colaboración, sino el impulso innovador de la marca y la solidez de la misma. El uso de colores neutros con acentos de color alusivos a la marca en puntos focales, permitieron darle al espacio un aire renovado y vanguardista.
La entrada de luz natural y amplios ventanales en el perímetro de la oficina fueron el complemento perfecto para el diseño interior de este nuevo espacio para la firma inversionista.









