Loading
Pasar al contenido principal
Main navigation
30 Años
Servicios
Proyectos
Nosotros
Clientes
Publicaciones
Contacto
Select your language
Español
English
AON RE
Inicio
/
AON RE
Introducción
Clientes
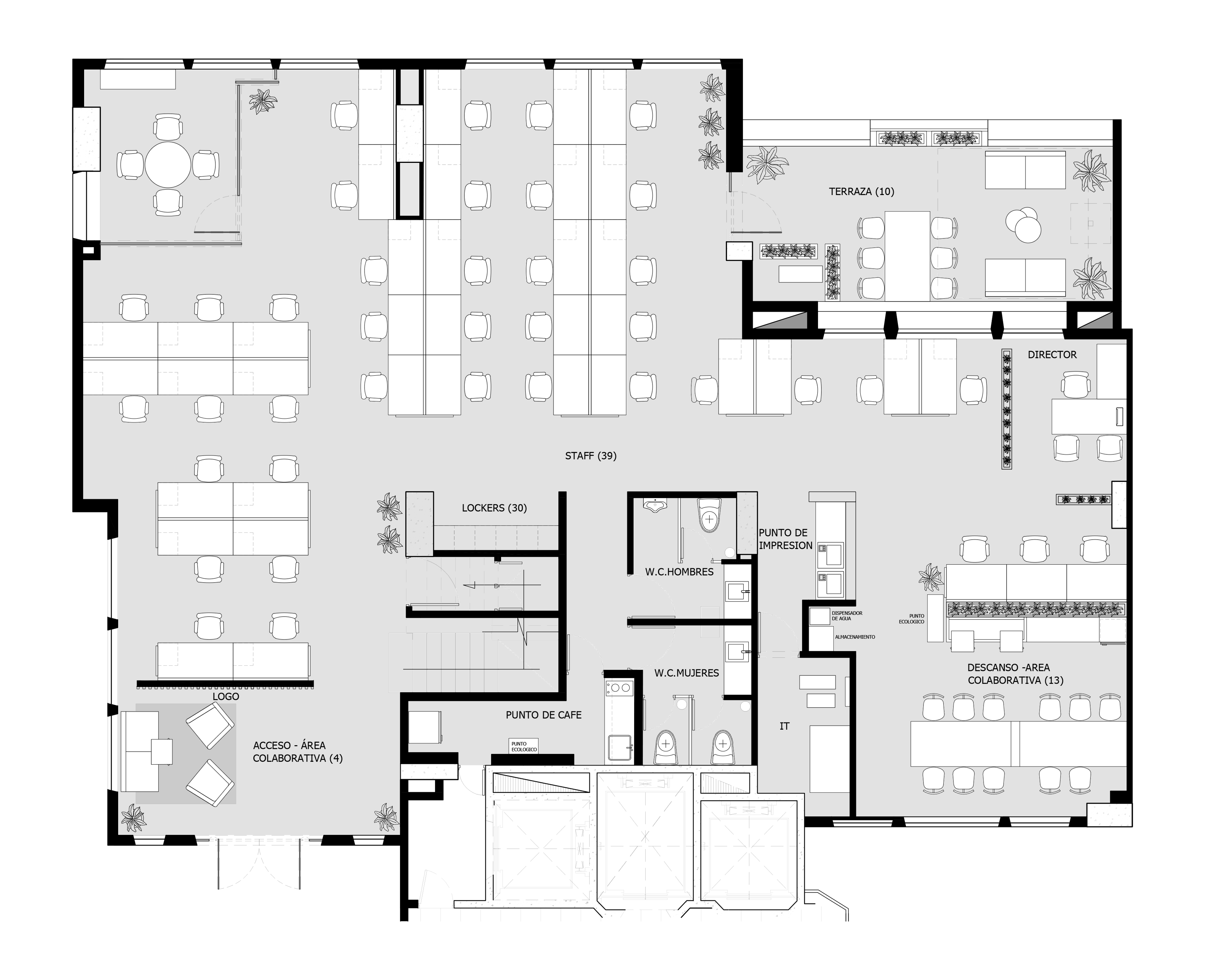
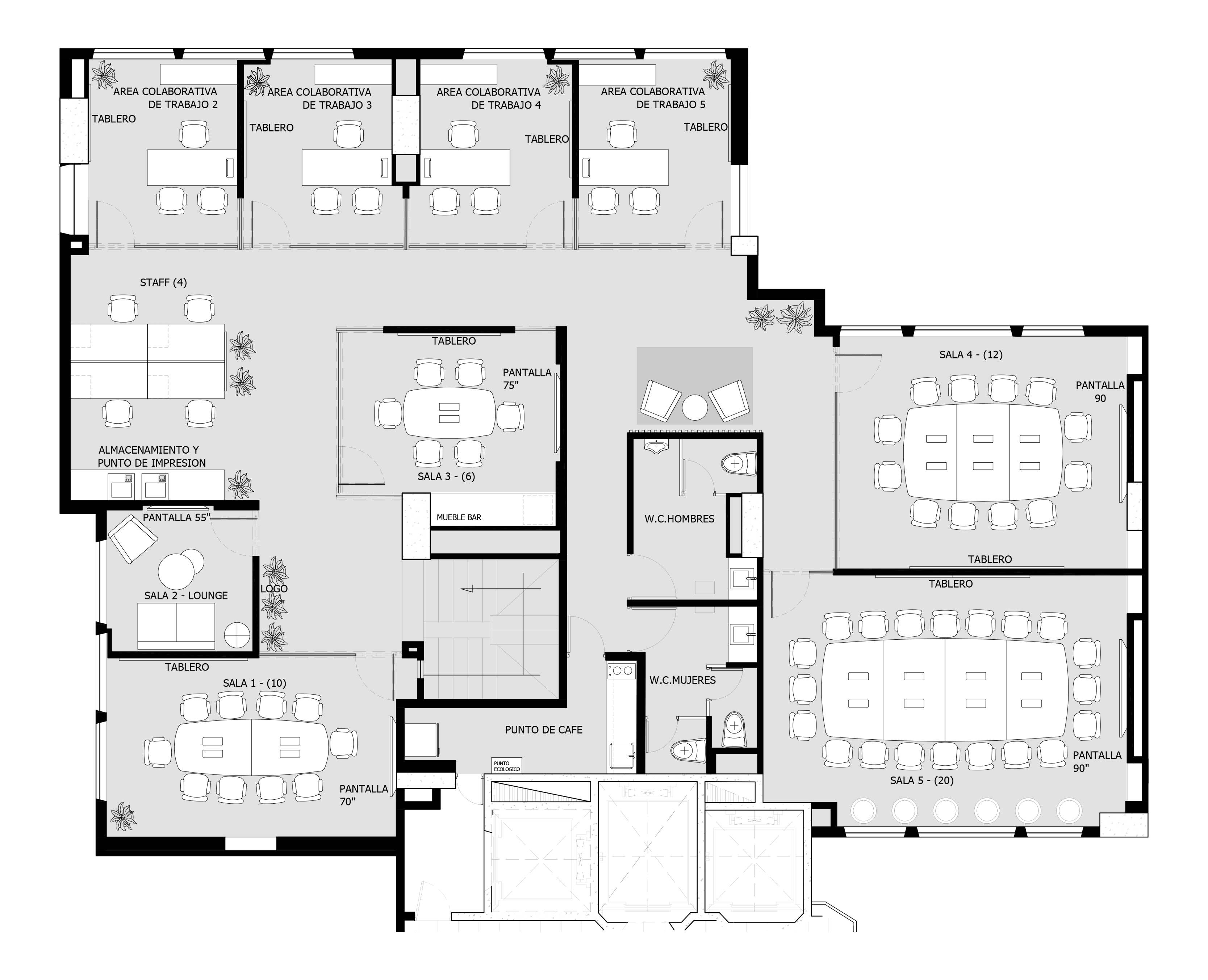
AON
Fecha
2024
Categorias
Proyectos Corporativos
Etiquetas
Diseño interior y Construcción