Hemos sido aliados de AON por casi 10 años, y en esta nueva oportunidad, el turno fue para Cali: diseñar y construir sus nuevas oficinas en la Torre CCI Occidente.
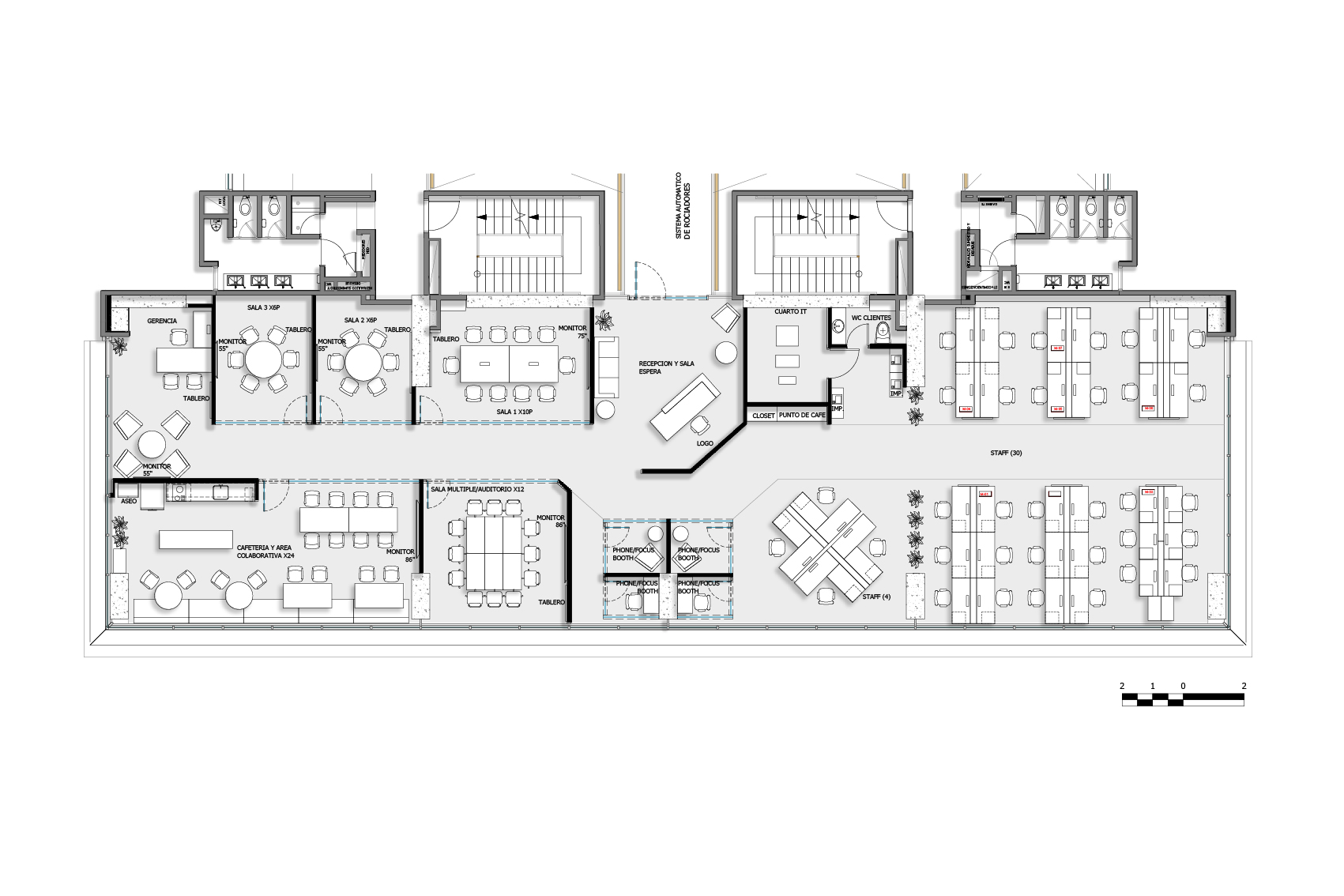
En este proyecto, se buscaba crear un layout limpio, creando un amplio espacio de bienvenida, se dividió la planta: separando las zonas de trabajo de las zonas de clientes, brindando áreas de colaboración y bienestar en el medio, para usos del equipo interno, como para visitantes o clientes. En cuanto a aspectos gráficos, junto con el área de mercadeo, se definieron puntos focales, para plasmar -mediante textos o imágenes- los valores y la nueva marca de AON. Los materiales utilizados fueron texturas tipo madera y concreto en los pisos, alfombra en zona de trabajo para confort acústico, contrastados con elementos verticales en perfilería negra y vidrio, techos abiertos para dar amplitud y un estilo industrial acorde a la arquitectura del edificio, y la iluminación fue uno de los protagonistas del proyecto, enmarcando cada zona de trabajo. El propósito del espacio consistió en crear un ambiente con carácter moderno, vibrante, y a la vez acogedor, que invitara a la colaboración, y fuera para todos, agradable regresar a trabajar en la oficina postpandemia.
Fue un gusto para nosotros haber trabajado este proyecto de la mano del equipo de AON, y el resultado final fue espectacular! Creo que vale la pena resaltar su slogan: WORKING TOGETHER IS BETTER!
“Se trabajó en equipo con nosotros en aras de estar coordinados, se buscaron soluciones ante situaciones inesperadas y ¡hasta se entregó antes de tiempo cosa que por lo general no pasa nunca en una obra! ¡¡¡Definitivamente escogimos el proveedor que necesitábamos!!! Muchas gracias por el trabajo de todo el equipo de Figamma el cual de verdad se lució con este proyecto!!!!
— Gustavo Cabal. VP Regional, Región Andina



















