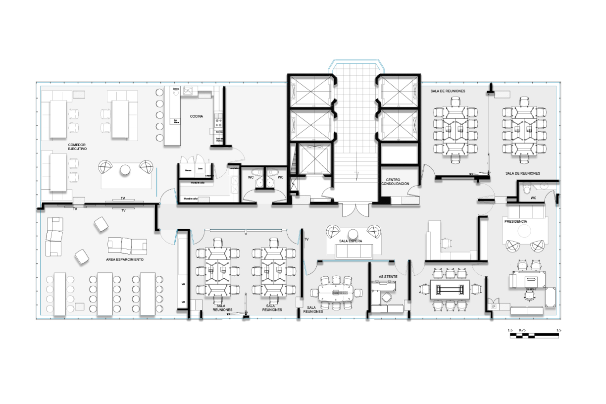
Ubicado en un edifico de más de 30 años de construido, y con muchas limitantes a nivel arquitectónico como techos bajos y ventanas pequeñas de vidrios oscuros, el concepto de diseño para este proyecto se basó en la aplicación del color rojo intenso del logo en áreas focales. El reto principal, fue lograr que el ambiente interior fuera vibrante y equilibrado, mediante el uso de tonos grises y blancos con acentos puntuales rojos en el mobiliario de Haworth, al igual que la diferenciación de alfombra por las distintas áreas de trabajo y colaboración. Se resalta la importancia de la marca y del trabajo en equipo mediante la aplicación gráfica en cajas de luz y elementos visuales en los muros y displays. En la zona de presidencia y áreas VIP como el comedor ejecutivo y las áreas de bienestar, se utilizaron productos de Vitra, Ligne Roset entre otros.










